樓盤:西山林語
面積:321平米
裝修風格:意式極簡風格
設計師:張雷

一樓為別墅公共區,開放式空間南北通透,有內置電梯,進門玄關門廳區過渡是設計的亮點,敞開式廚房和餐廳、客廳可以進行交互式溝通,也是家庭聚會增進感情的很好場所。
二樓為私密休息區,兩個衛生間三個臥室,可 根據家庭成員進行具體的布局規劃。
南北兩側露臺可以作為生活陽臺和休閑區進行設計規劃。
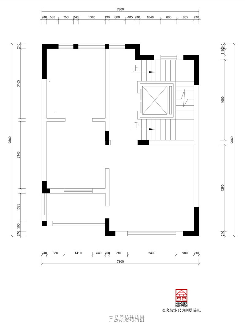
三樓為房屋主人私密區,整個三層給主人使用,與樓下公共區域獨立分離,保證了主人的隱私與獨享的安靜。衛生間、衣帽間、臥室、休閑陽臺,打造一種集功能與舒適一體的生活方式。
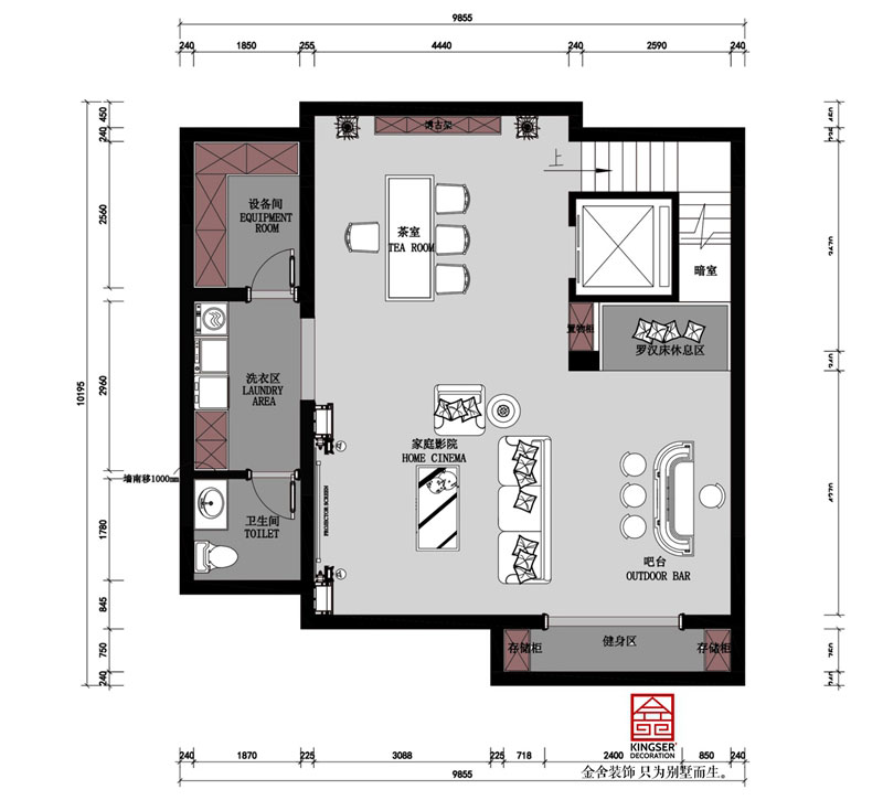
負一樓為生活區和休閑娛樂區,除設備間、洗衣間外,兼具茶室、康體、紅酒儲藏、影音室等功能。三五好友相聚一堂,釋放壓力,品茗談心。
